O NR27
SAN SEBASTIÁN
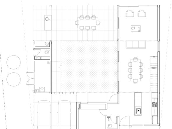
En un terreno de 20x40, en una urbanización privada de Pilar, provincia de Buenos Aires, se implanta una casa patio.
Los distintos usos se organizan alrededor de un vacío central de manera singular, estableciendo límites particulares para cada caso.
Límites que se traducen en el uso variado de los elementos de trabajo: un muro ciego, un ventanal, un tamiz, un balconeo, una circulación estrecha, una galería pasante.
El volumen construido es nuevamente un filtro que determina la organización y uso del espacio.
Por momentos una estructura material que se acomoda para dar sombra.
Hacia la calle la vivienda crece en altura, y se consolida un volumen compacto que otorga privacidad y jerarquiza los accesos.
A medida que se transita hacia el fondo, la casa se vuelve más permeable, generando un vínculo estrecho entre los distintos espacios que rodean el patio.
2024
PROYECTO
(RESIDENCIAL)
OBRA NUEVA
Arquitecto asociado Mariano Kampelmacher




























